Details

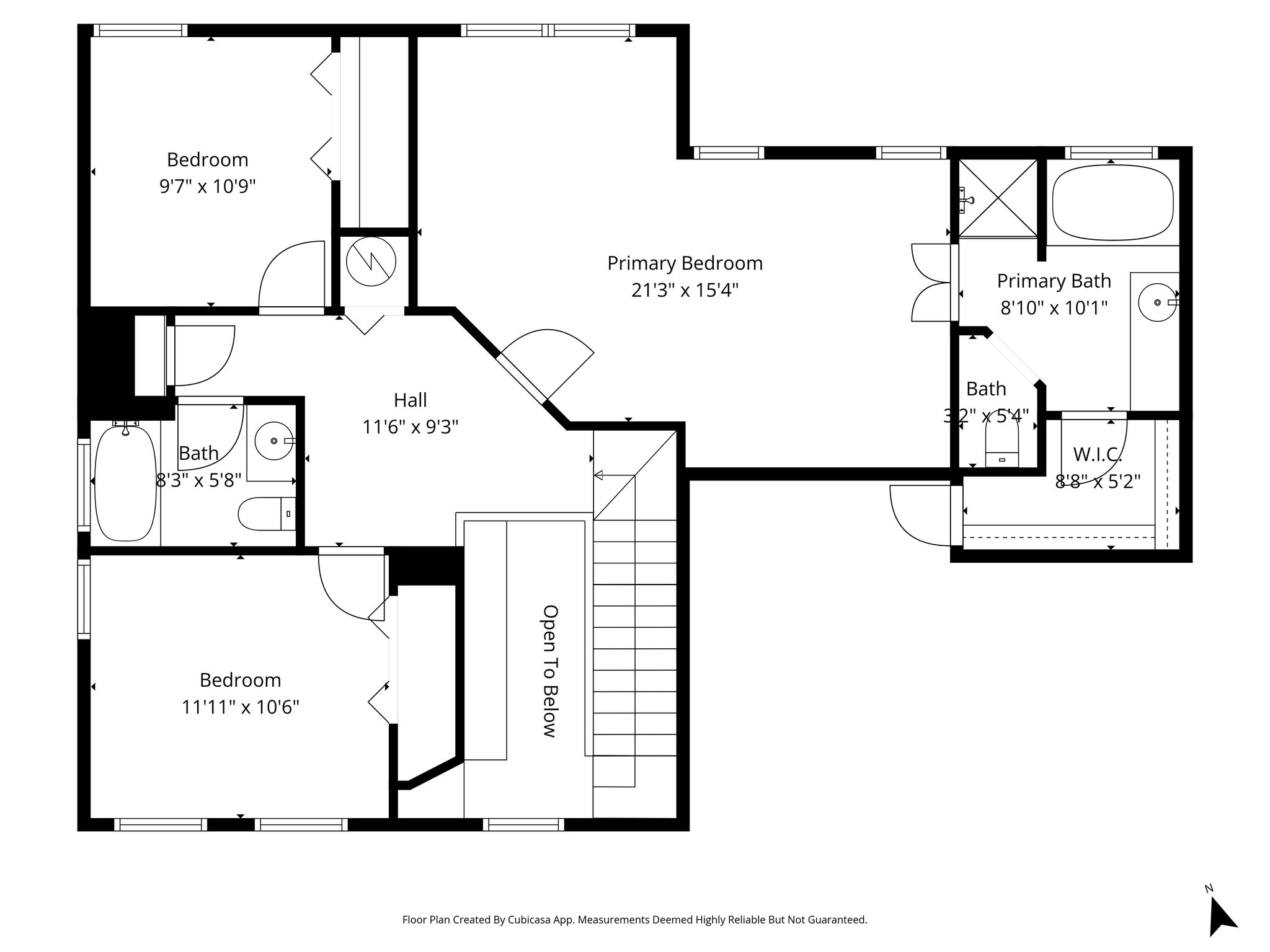
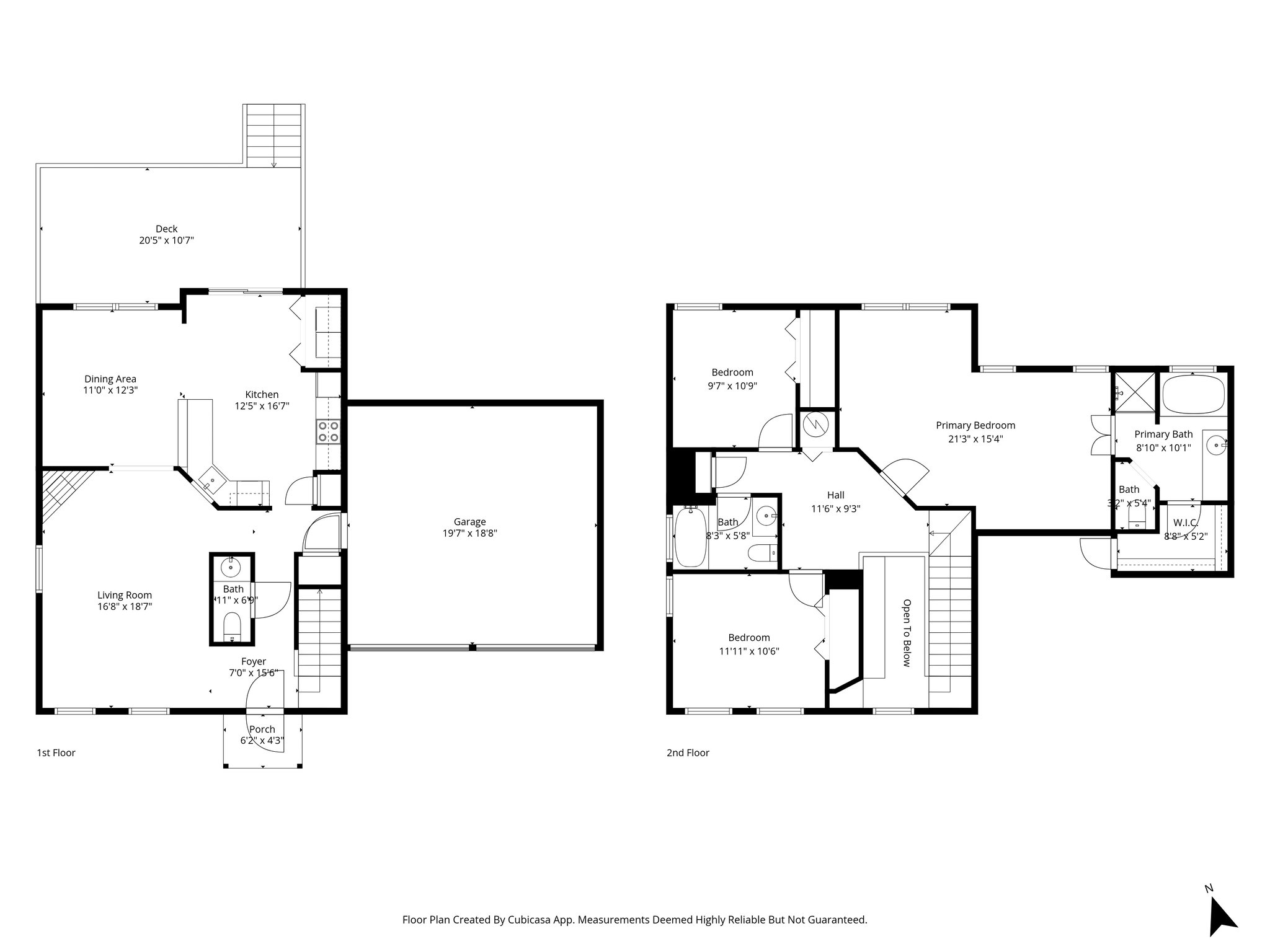
Located in Fairview Lake, this two-story traditional home offers over 1,800 square feet of living space on a level, fenced lot. The interior begins with a two-story foyer and features new paint and new waterproof laminate flooring that extends throughout the main level. The spacious great room includes a gas log fireplace, while the separate dining room provides a dedicated space for entertaining. The functional kitchen is equipped with a newly installed dishwasher, stove/oven, and built-in microwave, complemented by a refrigerator approximately two years old. This space opens directly to a sunlit breakfast area. The primary suite, located on the second floor, is designed with a private sitting area/loft and a bathroom with a double vanity, jetted tub, separate shower, and walk-in closet. Two additional secondary bedrooms and a full hall bathroom complete the upper level, all finished with new carpeting and freshly painted. The home includes newly installed upper and lower HVAC systems, a hot water heater approximately two years old, and a washer/dryer unit also approximately two years old. The exterior features a 2-cargarage with a newly installed garage door opener, a 20x11 rear patio and deck, and a large, level backyard enclosed by a privacy fence with newly installed gutter inserts. Positioned for privacy, the backyard overlooks the neighborhood pond. Residents of Fairview Lake have access to extensive community amenities, including a swimming pool, clubhouse, playground, soccer field, skating area, and walking trails. Minutes away for shopping and restaurants and quick access to 385. Come see your new home today!

  • $354,900
  • 3 Bedrooms
  • 2.5 Bathrooms
  • 1,819 Sq/ft
  • Lot 0.48 Acres
  • 2 Parking Spots
  • Built in 1997
  • MLS: 1586329

Images

Floor Plans