Details

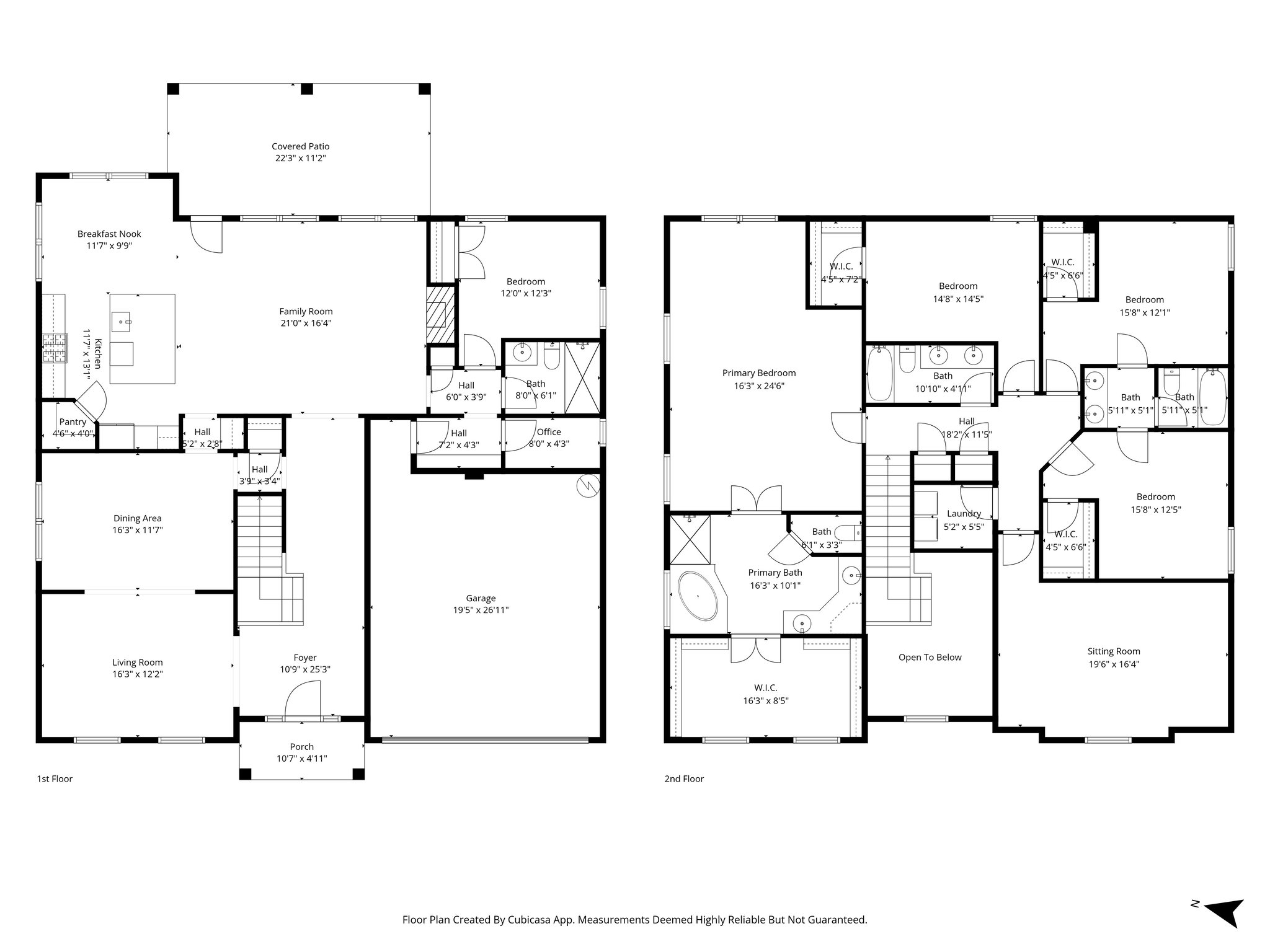
Located in the Copper Creek community of Simpsonville, this Duvall II floor plan by Mungo Homes offers over 3,600 square feet of living space on a level lot with mountain views. The two-story design features five bedrooms and four bathrooms, anchored by a dramatic two-story foyer
and an open-concept layout. The main level is designed for both formal and casual needs, featuring a formal living room that flows into a separate dining room with coffered ceilings. The kitchen is equipped with quartz countertops, a butler's pantry, a gas cooktop, and a wall oven,
overlooking a breakfast area and a large great room with a gas log fireplace. A guest bedroom and full bathroom are also located on the first floor, providing a suitable space for an office or multi-generational living. A dedicated mudroom and organizational space are positioned off the
two-car garage for daily convenience. Upstairs, the expansive primary suite includes a private sitting area and a bathroom with a double vanity, garden tub, separate shower, and an oversized walk-in closet. Three additional secondary bedrooms, each featuring its own walk-in closet, are located on the second floor alongside a spacious bonus/rec room and a walk-in laundry room. The exterior includes a brick-veneer front and a 20x12 rear patio overlooking the backyard. This property combines high-capacity living with modern energy-efficient features, including a tankless gas water heater and insulated windows.

  • $579,900
  • 5 Bedrooms
  • 4 Bathrooms
  • 3,720 Sq/ft
  • Lot 0.19 Acres
  • 2 Parking Spots
  • Built in 2021
  • MLS: 1585250

Images

Floor Plans